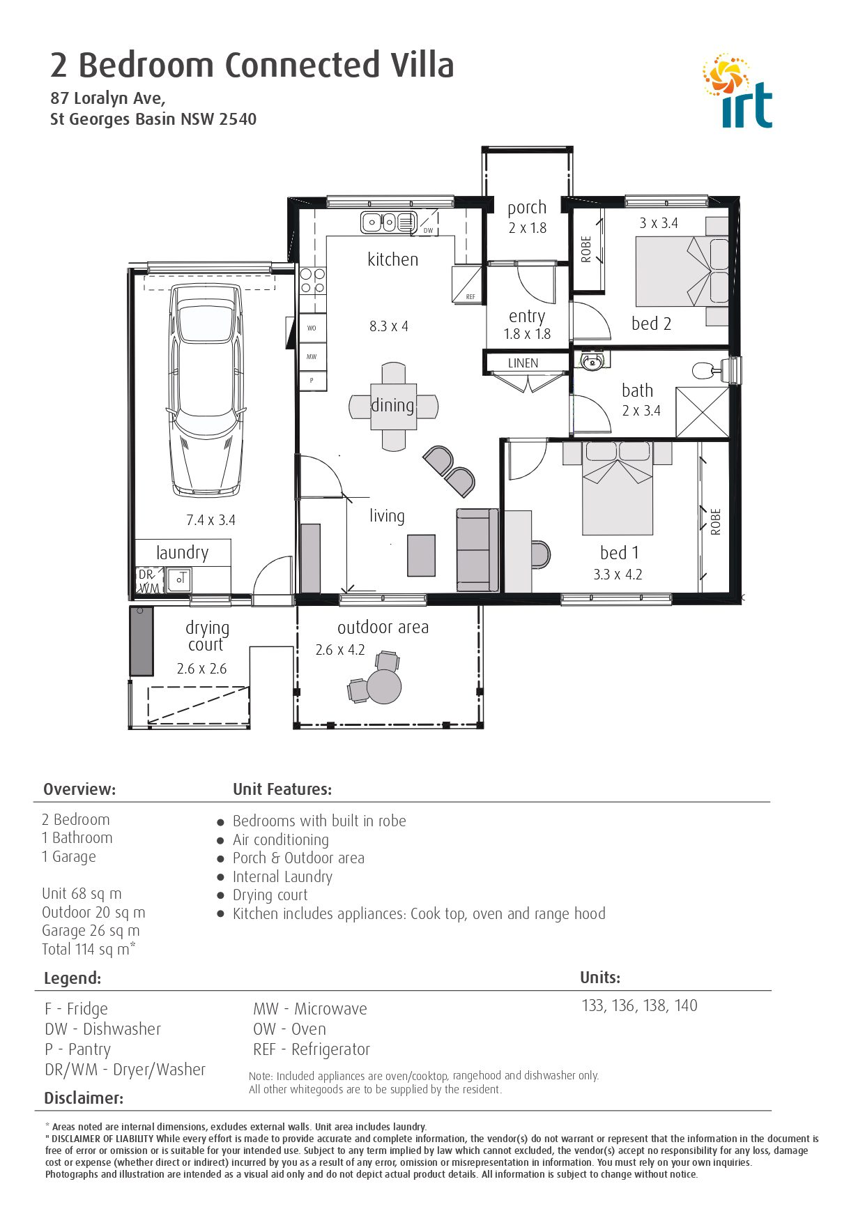
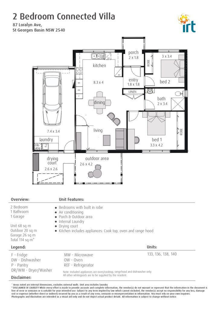
Step into the ease of brand new living with this thoughtfully designed two-bedroom home. Both bedrooms include built-in wardrobes, while the modern kitchen with quality appliances flows seamlessly into the open-plan living and dining area, creating a welcoming space for everyday living.
A private porch and outdoor area offer the perfect place to relax outdoors, while air conditioning ensures comfort throughout the seasons. With an internal laundry, drying court and secure single garage, this home offers a practical and low-maintenance lifestyle.
Download the floor plan to explore the layout here.
Payment Options Available: At IRT, we want to make it as easy as possible to understand the costs involved with living in a retirement village. It’s worth taking the time to understand how it all works, and we’re here to help each step of the way. Find out more
Disclaimer: Furnishings are for illustrative purposes only and are not included in the villa.
Recurrent Charges: Recurrent charges are essentially service fees that village residents pay to cover the cost of operating and maintaining the village. They’re paid fortnightly, and cover things such as: Council rates, water – for the village community, waste, facilities, electricity in common areas, building insurance, village security and more. Providers are not legally allowed to make a profit from these contributions and they are calculated based on actual day-to-day operating costs required to run the village.










































UNDER OFFER

































UNDER OFFER
© IRT 2026. All Rights Reserved.